Bouw tijdelijke huisvesting bij St. Jan Baptist start medio juli

17 jun 2020, 23:42Nieuws
impressie noodgebouw
Gemeente Veldhoven
Onder voorbehoud van tijdige vergunningverlening, start de aannemer half juli met de bouw van de tijdelijke huisvesting bij basisschool St. Jan Baptist
In Veldhoven wil de gemeente dat kinderen in de opvang-, en basisschoolleeftijd thuisnabij, dus in hun woonomgeving, basisonderwijs kunnen volgen en naar opvang kunnen gaan. Gemeente en onderwijs- en kinderopvangpartners maken daarom samen een Integraal Huisvestingsprogramma (IHP). Afgelopen februari heeft de raad over het IHP gesproken en ambities vastgesteld. Ook heeft hij besloten dat op een aantal plekken tijdelijke huisvesting komt om de toenemende tijdelijke leerlingenstroom op te kunnen vangen, waaronder bij St. Jan Baptist. Deze huisvesting in Oerle moet klaar zijn voor de start van het nieuwe schooljaar.
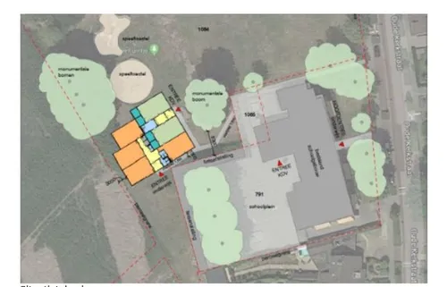
noodgebouw st jan baptist

Stand van zaken

Gemeente, onderwijs en kinderopvang zijn het inmiddels eens over de functies en indeling van het gebouw. Zie de plattegrond en de impressie van het gebouw De bouw van de tijdelijke huisvesting is aanbesteed. De Meeuw uit Oirschot gaat de bouw verzorgen. De gemeente heeft in de eerste week van juni de vergunning aangevraagd om de tijdelijke huisvesting te realiseren voor een maximale duur van 10 jaar. De aanvraag is nu in behandeling. St. Jan Baptist en kinderopvang Nummereen hebben inmiddels hun ouderraad en oudercommissie ingelicht.

Planning

Onder voorbehoud van tijdige vergunningverlening, start de aannemer half juli met de bouw van de tijdelijke huisvesting. De aannemer zal belanghebbenden tijdig informeren over de planning en de uitvoering van de werkzaamheden. Na verlening en publicatie van de vergunning is er een bezwaartermijn van 6 weken. De bouw is klaar voor het begin van het nieuwe schooljaar, tenzij er vanwege bezwaren vertraging optreedt. Na uiterlijk 10 jaar wordt de tijdelijke voorziening verwijderd. Het terrein zal dan in de huidige situatie worden hersteld.
loading

Loading articles...

Loading